北海道・富良野エリアの不動産市場において、これほど象徴的な立地と圧倒的なスペックを持つ物件は滅多に市場に出ません。
中富良野町の代名詞「ファーム富田」のすぐ隣。1687㎡(約510坪)という広大な敷地に建つ、330.68㎡(約100坪)の築浅大型シャレー(2018年築)「Furano Lookout(フラノルックアウト)」が、1億6,500万円で登場しました。
Contents
1棟貸しの豪華シャレー「Furano Lookout」:富良野インバウンド投資の最適解

インバウンドの「夏と冬」を完全に網羅する黄金の立地
1日1組限定のプライベートな空間でありながら、四季折々の観光名所へのアクセスは抜群です。
- 夏の絶景: ラベンダーの名所「ファーム富田」まで徒歩圏内。心地よい風と美しい自然に包まれる贅沢な時間を提供します。JR富良野線「西中駅」からも徒歩24分。
- 冬のパウダースノー: 国内外のスキーヤーが集う「富良野スキー場」まで車で約15分。
圧倒的な設備投資がもたらす高利回りのポテンシャル

インバウンドの富裕層や大人数グループをターゲットにする上で、本物件の設備は最強の競争力を誇ります。モダンな日本の畳と西洋のリビングエリアを融合させた造りで、十勝岳の素晴らしい景色を堪能できるだけでなく、「高単価(高ADR)でもゲストが満足する」ための細やかな設備投資がすでに完了しています。
最大15名がストレスなく過ごせる空間と寝具設計
多世代のファミリー旅行や、複数家族でのグループ旅行において最も重視される「寝室と水回り」のプライバシーが完全に守られています。
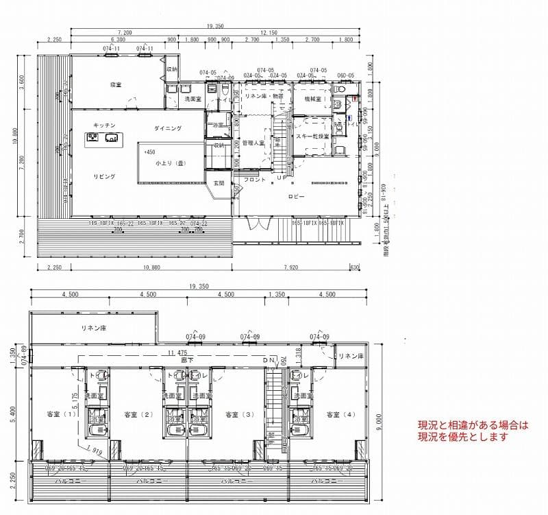
- 5ベッドルーム・水回りの充実: 2階には専用バスルーム付きのベッドルームが4室。1階にはマスターベッドルームを配置。施設全体でバスルーム5室・トイレ7室を備え、朝の渋滞やグループ滞在のストレスを完全に排除しています。
- 最大15名+ベビーベッド対応:
クイーンベッド1台、シングルベッド8台、貸し布団5組(リビングの畳エリアで使用可能)、ベビーベッド1台。大人数の宿泊から小さなお子様連れの三世代旅行まで完璧に対応します。
「暮らすように泊まる」を極めた館内設備
長期滞在のゲストが快適に過ごせるよう、細部までホスピタリティが行き届いた設備が揃っています。
- 冬のインバウンドを掴むスキー乾燥室: 玄関の共用スペースには、スキー・スノーボード用具置き場と専用の乾燥ラックを完備。
- グループディナーを盛り上げる食の設備: 広々としたキッチンには、本格的なコーヒーマシーンに加え、卓上IHクッキングヒーター3台、しゃぶしゃぶ鍋3台をご用意。冬の夜、15名のゲスト全員で温かい鍋パーティーを楽しむという、最高のUX(顧客体験)を提供できます。
- 快適な長期滞在サポート: 無料のセルフコインランドリー、全館無料Wi-Fi、各部屋の除湿器完備。
- 広大な屋外バーベキューガーデン: 510坪の敷地内にはバーベキュー設備と4台分のカーポートを完備。
無人オペレーション稼働中。即営業可能な「防衛資産」

現在、日本の建設業界は深刻な資材高騰と工期遅延に直面しています。今からこの超好立地にこれだけの設備を整えた100坪の豪華シャレーを新築するとなれば、莫大なコストと時間がかかります。
本物件は「簡易宿所」ライセンスを取得済みであり、現在はスマートロック等を活用した「無人チェックイン・アウト」にて実際に稼働中です。購入後、投資家は煩わしい立ち上げ期間をスキップし、「即営業可能な即戦力アセット」として収益を得られます。
💡 JANKENチームの視点:投資家への特別なオファー
本物件はすでに稼働実績と無人オペレーションの仕組みができあがっており、遠方の投資家にとっても非常に手離れの良い物件です。必要であれば、緊急時の電話サポートや清掃手配もご相談可能です。
そして何より、本物件は「価格交渉等、お気軽にご相談ください」という柔軟なスタンスを取っています。1億6,500万円というハイエンドな価格帯において、交渉の余地があることは大きな戦略的メリットです。ぜひ、あなたの希望する投資シナリオを私たちにぶつけてください。
Furano Lookout 物件概要

| 項目 | 内容 |
| 物件名 | Furano Lookout(フラノルックアウト) |
| 価格 | 1億6,500万円(税込) ※価格交渉のご相談承ります |
| 所在地 | 空知郡中富良野町字フラヌ1970番地29 |
| 土地面積 | 1687㎡(510.31坪) |
| 建物面積 | 330.68㎡(100.03坪) |
| 建物構造 | 木造亜鉛メッキ鋼板葺き2階建 |
| 築年月 | 7年(2018年12月築) |
| 地目 | 雑種地 |
| 都市計画 | 域外 |
| 用途地域 | 指定無 |
| 公共交通へのアクセス | JR富良野線 西中駅 徒歩24分 |
| 用途 | 指定無 |
| 特徴 | 簡易宿所として稼働中、最大15名収容、無人チェックイン対応 |
| 取引態様 | 専任媒介 |
サービス
| 価格 | ¥165,000,000 | 寝室 | 15 |
|---|---|---|---|
| 物件面積 | 330.68㎡ (約100坪) | バスルーム | 5 |
| 土地面積 | 1687㎡ (510.31坪) | 築年数 | 7年(2018年12月) |
| 建物構造 | 木造亜鉛メッキ鋼板葺き2階建 | 物件タイプ | 下宿・民宿・ホテル |
動画
MAP
- 住所
- 北海道空知郡中富良野町字フラヌ1970番29
- エリア
- 北海道 / 富良野エリア / 中富良野
